string(4) "3548"

Парогенератор дизельный 1200 кг до 170 °C / 9 бар в Петрозаводске

Версия
для печати
В наличии на складе Цена в рублях с НДС 1 489 000
Получите скидку
у менеджера
Цена на парогенератор дизельный 1200 кг до 170 °C / 9 бар с доставкой от 1 489 000 рублей с НДС
Вид топкиДизельная горелка
ТопливоЖидкое, Дизель
Температура пара, не более, °C170
Давление пара, не более, МПа0.9
Доставка ТК в г. Петрозаводск и по России
Безналичный расчет
Опросный лист
Эту продукцию можно
купить в лизинг
  • Технические
    характеристики
  • Описание
    товара
  • Комплект
    поставки
  • Дополнительно
    потребуется
  • Подключение и
    монтаж
  • Сертификаты и
    гарантии
  • Отзывы о
    продукции
  • Видео
    обзор
  • Жаротрубный комбинированный парогенератор
  • Водяной объем в 3 раза превышает паропроизводительность – это исключает температурные колебания в трубной системе и гарантирует надежную работу парогенератора даже при подпитке холодной водой
  • Паровой объем составляет до 15 % от общего объема – это обеспечивает стабильную выработку пара требуемых параметров
  • Большой водяной объем парогенератора, отсутствие горизонтальных участков в трубной системе и эффективная система дренирования позволяют минимизировать последствия выпадения солей и отложения накипи
  • Имеет систему очитки поверхностей нагрева от сажи без остановки работы

Технические характеристики парогенератора дизельного 1200 кг 170 С

Тип Парогенератор
Вид топки Дизельная горелка
Конструкция котла Жаротрубный
Производительность, кг/ч 1200
Производительность, т/ч 1.2
Максимальная тепловая мощность, МВт 0.9
Диапазон регулирования мощности, % 40-100
Топливо Жидкое, Дизель
Низшая теплота сгорания проектного топлива, кКал/кг 12000
КПД котла на ДИЗЕЛЕ, не менее, % 82
Расход ДИЗЕЛЯ при максимальной нагрузке котла, кг/ч 77
Расход условного топлива, кг/ч 133
Температура пара, не более, °C 170
Давление пара, не более, МПа 0.9
Давление пара, не более, (кгс/см²) 9
Давление пара, не более, бар 9
Полный объем котла, м³ 3.96
Объем паровой части, м³ 0.37
Аэродинамическое сопротивление, Па (мм. вод. ст.) 62 (6.2)
Тяга Принудительная
Объем топочной камеры, м³ 2.13
Размер топочной камеры, диаметр*глубина, мм 1195х1900
Присоединительные размеры выхода пара, Ду 80
Присоединительные размеры по водяному тракту, Ду 32
Присоединительные размеры по дымовым газам / диаметр дымовой трубы, мм 400
Габаритные размеры котла, длина*ширина*высота, мм 4000х2050х2100
Масса, кг 5250
Марка STEAMEXPERT
Энергоэффективность Высокая
Бренд STEAMEXPERT

Дизельный парогенератор 1200 кг 170 С в Петрозаводске

Парогенератор дизельный 1200 кг предназначен для выработки пара высокого давления 0.9 МПа / 9,0 кгс/см 2 / 9 бар и температурой до 170 °С. Промышленный парогенератор на жидком дизельном топливе 1200 кг - 170 °С - 9,0 кгс/см2 применяется для обработки молочной, мясной и рыбной продукции, для стерилизации тары в пищевой промышленности, при приготовлении и запаривании комбикормов в животноводстве, в пивоварении, при производстве бетона, газобетона, пенобетона, ЖБИ, тротуарной плитки при производстве фанеры, в горнодобывающей промышленности, в строительстве для разморозки инертных материалов, в деревообработке для пропарки древесины в сушильных и пропарочных камерах, при нефтедобыче и нефтепереработке, для отопления и горячего водоснабжения промышленных зданий.

На нашем заводе вы можете купить промышленные парогенераторы на всех видах топлива различных давления и температуры.

Парогенераторы 1.2 т 0.9 МПа 170 ºС на дизельном топливе марки STEAMEXPERT имеют следующие преимущества

  • Исключен вынос капель воды в технологические трубопроводы благодаря большой поверхности испарения и наличию сепаратора пара
  • Стабильная непрерывная выработка пара требуемых параметров при любой нагрузке благодаря большой паросборной камере - до 15 % от общего объема
  • Высокая скорость образования пара благодаря эффективной конвективной части котла
  • Возможность подпитки котла холодной водой +5 °С благодаря большому водяному объему и отсутствию температурных колебаний в трубной системе, работа парогенератора без экономайзера и подогревателя питательной воды
  • Повышенная надежность конструкции благодаря отсутствию неравномерных температурных расширений в жаровой трубе и трубной части теплообменника
  • Внешние поверхности нагрева очищаются паром без остановки котла
  • Внутренние поверхности нагрева не имеют горизонтальных участков и позволяют дренировать и очищать котел от выпадающего в процессе работы шлама без остановки парообразования

Устройство парогенератора на жидком дизельном топливе 1200 кг 170 °С

Конструкция парообразователей бренда STEAMEXPERT 1200-170-0.9 ЛЖ отличается от дизельных парогенераторов Уран, Паргарант ПГ, Eco-Par, TEPLO ПГСД, Ural-Power.

Парогенератор STEAMEXPERT представляет собой прямоточный цилиндрический парообразователь с дизельный длинофакельной горелкой, насосами и автоматикой.

Дизельный парогенератор 1200 кг 170 °С представляет собой горизонтальный жаротрубный агрегат, состоящий из двух цилиндров разного размера, вставленных один в другой. Их изготавливают из листовой легированной стали, обладающей особой прочностью. Такие свойства необходимы для того, чтобы усилить защитные свойства корпуса и сделать его устойчивым к высокому давлению изнутри.

В передней части жаровой трубы находится топка, в задней конвективный пучок труб. К фронту агрегата крепится плита, на которой устанавливается горелка. Для обеспечения безопасности и с целью снижения излишне высокого давления котлоагрегат оборудуется дополнительным взрывным клапаном.

Принцип работы дизельного парогенератора 1200 кг 0,9 МПа

Дизельная горелка устанавливается с фронтовой части агрегата. Жидкое топливо через горелочное устройство подается в топочную камеру, где сгорает. Продукты сгорания нагревают воду в водяной рубашке топочной камеры, проходят через трубный пучок и выходят в его верхней части.

Автоматика обеспечивает безопасную работу.

Водотрубный пучок соединяет верхнюю и нижнюю часть водяной рубашки агрегата. Пар высокого давления образуется при испарении нагреваемой воды и собирается в верхней части агрегата, в паросборной камере, далее пар через паропровод направляется на технологические нужды.

Комплектация и монтаж парогенератора 1,2 т пара на дизеле 9 кгс/см2

Парогенератор на жидком дизельном топливе 1,2 т 170 °С 0.9 МПа комплектуется манометром, уровнемерной колонкой, указателем уровня, двумя предохранительными клапанами, паровыми и продувочными вентилями, приборами КИП. Дымосос для работы агрегата не требуется. Питательные насосы, горелка и автоматика поставляются отдельно.

Агрегат поставляется блоком максимальной заводской готовности. Блок устанавливается на специально подготовленную ровную поверхность.

Подсоединяется по воде, устанавливается запорная арматура на подводящем трубопроводе и отводящем паропроводе, устанавливаются предохранительные клапаны и контрольно-измерительные приборы. В случае необходимости делается изоляция котлоагрегата. Подключаются горелочное устройство и автоматика.

Купить дизельный парогенератор 1200 кг 170 °С

Купить парогенератор на дизеле 1200 кг 170 °С 0.9 МПа в Петрозаводске вы можете в нашем электронном магазине, прислав заявку на наш электронный адрес, также вы можете оформить заявку онлайн или позвонить по телефону 8-800-700-17-43. Доставка осуществляется транспортными компаниями по всей России и Казахстану.

Дополнительное вспомогательное оборудование для работы парогенератора дизельного 1200 кг 170 С

Для эффективной и надежной работы парогенератора дизельного 1200 кг 170 С в вашей котельной вам потребуется дополнительное оборудование - автоматика ЩУК, горелка импортного или отечественного производства, насос сетевой и подпиточный, регулятор давления газа (по необходимости), газоходы и переходники для газового тракта, дымовая труба. Мы предлагаем рассмотреть типовые варианты комплектации.

В случае если у вас на объекте уже имеется насосное и горелочное оборудования, мы можем проверить совместимость парогенератора дизельного 1200 кг 170 С нашего производства и вашего оборудования.

Для проверки соответствия подпиточной воды для котлоагрегата требованиям к питательной воде, направьте нам химический анализ воды, в случае необходимости ее корректировки мы предложим вам систему водоподготовки котловой воды.

Можем изготовить нестандартные узлы для выполнения быстрого монтажа котла - газоходы и узлы обвязки.

Типовую схему монтажа котла вы можете посмотреть во вкладке схемы подключения и монтаж.

Автоматика выполняет следующие функции:

  • ручной пуск и автоматическую остановку котла;
  • аварийную остановку котла с индикацией причины аварии и подачей звукового сигнала;
  • исключает пуск парового котла при выходе за пределы аварийных параметров;
  • автоматически поддерживает заданное давление в барабане котла;
  • осуществляет контроль рабочего уровня воды в барабане котла между отметками верхнего и нижнего рабочего уровня;
  • автоматически производит пуск/остановку питательного насоса и световую индикацию о критически низком (упуск) или критически высоком (перелив) уровне воды;
  • отключает подачу топлива в случае погасания факела в топке котла.
Цена 168 000 рублей с НДС

Автоматическая дутьевая блочная горелка на дизеле в комплекте с топливным насосом, трансформатором поджига.

Цена 463 000 рублей с НДС
  • Работают в одно-, двух-, трехступенчатом и модуляционном режиме.
  • Основной вид топлива - дизель.
  • Применяется со всеми типами камеры сгорания.
  • Распыление топлива механическое, при помощи форсунки, с высоким давлением.
  • Полное сжигание топлива обеспечивается с помощью регулирования соотношения количества воздуха и топлива.
  • Регулирование расхода воздуха при минимальном и максимальном режиме работы, обеспечивается электрическим сервоприводом. Автоматическое перекрытие доступа воздуха в топку при остановке работы горелки.
  • Горелка оборудована крепёжным фланцем и уплотнительной прокладкой, а также гибкими топливными шлангами, и форсунками.

Используется в качестве питательного насоса в производственных паровых котельных

Цена 137 100 рублей с НДС

Разрабатывает индивидуально на основе химического анализа воды потеребителя

Производим газоходы по индивидуальному заказу согласно схеме компоновки котельной. Системы газоходов могут включать в себя:

  • шиберы;
  • газоходы различного сечения;
  • переходы;
  • тройники;
  • карманы всасывающие дымососов.

Схемы подключения и монтаж парогенератора дизельного 1200 кг 170 С

Жаротрубный парогенератор дизельный 1200 кг до 170 °C / 9 бар, предназначен для получения насыщенного пара для технологических целей в производстве. Устанавливается в производственных и промышленных котельных.

Схема подключения и монтажа
Смотреть
Скачать

Схема подключения и монтажа

Монтаж парогенератора дизельного 1200 кг 170 С в котельной должен производиться в соответствии с проектом и с учетом требований Свода правил СП 89.13330. 2016 «Котельные установки» и «Правила промышленной безопасности при использовании оборудования, работающего под избыточным давлением, утверждены приказом Федеральной службы по экологическому, технологическому и атомному надзору от 15 декабря 2020 года N 536». Правильный монтаж котла – залог его надежной и долгой работы.

Чтобы правильно подключить парогенератор дизельный 1200 кг до 170 °C / 9 бар в котельной необходимо оставить проемы для обслуживания оборудования во время эксплуатации. На представленной здесь схеме обозначены их размеры. Кроме того, в данной примерной схеме монтажа паровых котлов и оборудования указан перечень минимально необходимого вспомогательного оборудования.

К вспомогательному оборудованию при подключении промышленного парового котла относят - щит управления котлом, питательные насосы (1 рабочий, 2 резервный), бак запаса воды, горелочное устройство, охладитель проб отбора воды, систему водоподготовки котловой воды, дымовую трубу, систему газоходов (по проекту).

В случае если подпиточная вода не соответствует по своим характеристикам требованиям к питательной воде, необходимо предусмотреть систему водоподготовки котловой воды.

Система питания котла
Смотреть
Скачать

Система питания парогенератора дизельного 1200 кг 170 С

При работе котла питание водой парогенератора дизельного 1200 кг 170 С производится через штуцер.

Подпитка котла ведется из питательного бака через насос, соединительную арматуру. На трубопроводе подпитки котла водой должно быть установлено запорное устройство и обратный клапан. Запорное устройство должно располагаться между котлом и обратным клапаном.

Для подпитки устанавливается не менее двух насосов с электроприводом. На стороне нагнетания каждого центробежного насоса до запорного органа должен быть установлен обратный клапан.

На трубопроводе выдачи пара, в непосредственной близости от котла, устанавливается запорное устройство.

На котле имеются продувочные штуцера Ду25, Ду15 и Ду10. Штуцер Ду25 предназначен для удаления шлама, образующегося в результате работы котла, периодической продувки котловой воды и для спуска воды в случае необходимости. Штуцер Ду15 предназначен для продувки водомерной колонки. Штуцера Ду10 предназначены для продувки указателей уровня.

В передней части жаровой трубы в верхней части установлена легкоплавкая пробка – предохранительное устройство прямого действия.

На боковой части корпуса устанавливается датчик уровней воды, связанный с паровым и водным пространством котла соединительными трубками не менее Ду25.

На боковой части корпуса устанавливается соединительная труба (колонка), служащая для установки двух указателей уровня, и связанная с паровым и водным пространством котла соединительными трубками не менее Ду25.

На боковой части корпуса внизу у котла имеется ревизия с крышкой, для периодического осмотра состояния поверхностей нагрева со стороны водяного объема.

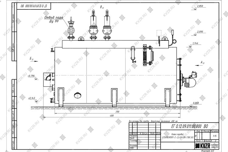
Схема парогенератора дизельного 1200 кг 170 С
Смотреть
Скачать

Схема парогенератора дизельного 1200 кг 170 С

В передней части жаровой трубы размещена топка, а в задней части - конвективный пучок труб.

В верхней части котла приварен паросборник, представляющий собой полуцилиндр. На паросборной камере устанавливаются предохранительные клапаны и два штуцера Ду15, один для установки электроконтактного манометра, второй для спуска воздуха с котла при заполнении водой при подготовке к работе.

К фронтовой плите котла крепится жидкотопливная горелка для подачи топлива в топку котла через амбразуру.

На задней крышке в основании дымовой трубы выполнен предохранительный взрывной клапан.

Образующиеся в топочной камере продукты сгорания проходят конвективный пучок труб и выводятся через трубу дымовую, установленную на корпусе в хвостовой части котла.

Отвод пара парогенератора дизельного 1200 кг 170 С
Смотреть
Скачать

Отвод пара парогенератора дизельного 1200 кг 170 С

Предохранительные клапаны предназначены для стравливания давления в котле при превышении допустимого значения. На котле установлены предохранительные клапаны пропускной способностью не менее часовой производительности котла.

Принцип работы клапана состоит в том, что при достижении паром номинального давления избыток пара выходит наружу. Клапана оборудованы ручным приводом для открывания при проверке их на срабатывание.

Щит управления совместно с электрооборудованием предназначен для управления работой парогенератора дизельного 1200 кг 170 С и защиты его при возникновении аварийных ситуаций. На двери щита расположены сигнальная лампа и органы управления работой котла, с табличками, указывающими их назначение. По месту либо на стенке щита крепится сигнальная сирена.

На паросборной камере устанавливается один электроконтактный манометр. При монтаже манометра, показывающего давление пара в котле, должна быть предусмотрена установка трехходового крана между манометром и сифонным устройством. Допускается установка других устройств, позволяющих контролировать показания рабочего манометра, путем подключения в систему контрольного манометра. Электроконтактный манометр выполняет роль датчика давления и предназначен для отключения дутьевого вентилятора и включения аварийной сигнализации при достижении паром предельно допустимого давления.

Датчик уровней служит для подачи команды на включение и отключение питательного насоса котла в процессе работы.

Указатель уровня воды предназначен для визуального контроля за уровнем воды при работе котла. На корпусе указателя крепится рамка или наносятся метки, указывающие верхний и нижний уровень воды.

Легкоплавкая пробка предназначена для сброса пара во внутренний объем топочной камеры в случае упуска воды ниже аварийного уровня и достижения фактического уровня воды на работающем котле ниже верхней кромки жаровой трубы. При этом легкоплавкая пробка перестает охлаждаться котловой водой и нагревается до температуры газов в топочной камере. Из-за нагрева наполнитель легкоплавкой пробки плавится и выдавливается давлением пара в топочную камеру, при этом сбрасывается давление пара и дополнительно гасится пламя.

Дополнительные услуги

Сертификат и качество парогенератора дизельного 1200 кг 170 С

Парогенераторы производства Котельный завод "РЭП" соответствуют строгим стандартам качества и безопасности. Завод производит парогенераторы в соответствии с требованиями ГОСТ 30735-3001 по Техническим Условиям завода.

Котлы имеют сертификаты соответствия Техническим регламентам Таможенного союза:

  • ТР ТС 032/2013 - «О безопасности оборудования, работающего под избыточным давлением».

Энергоэффективный парогенератор дизельный 1200 кг до 170 °C / 9 бар имеет гарантийный срок 24 месяца и срок работы при соблюдении правил монтажа и эксплуатации оборудования 10 лет.

Сертификат на котлы паровые Е .jpg
Сертификат на паровые котлы Е
Товарный знак на котлы паровые STEAMEXPERT .jpg
Товарный знак на паровые котлы STEAMEXPERT

Отзывы о продукции

Отзыва о товаре пока нет, будьте первыми!

Промышленные парогенераторы предназначен для выработки пара высокого давления 0,3 - 0,9 МПа (до 9,0 кгс/см2) и температурой до 170 °С Котельный завод производит котлы паровые мощностью от 300 кг пара в час до 1 т пара в час на всех видах топлива, а так же весь перечень сопутствующего котельного оборудования - насосы, автоматику, водоподготовку и прочее.

Смотреть видеообзор на

Вопрос-ответ

  • Технические
    характеристики
  • Описание
    товара
  • Комплект
    поставки
  • Дополнительно
    потребуется
  • Подключение и
    монтаж
  • Сертификаты и
    гарантии
  • Отзывы о
    продукции
  • Видео
    обзор
Документы завода
  • Сертификаты завода
  • Членство в СРО
  • Аттестованная технология сварки
  • Патенты на котельное оборудование
  • Товарные знаки
Смотреть все документы
Сертификат на водогрейные котлы на твердом и жидком топливе
Сертификат на водогрейные котлы на газе и жидком топливе
Сертификат на котлы отопительные паровые КП
Сертификат на топки
Сертификат на щиты управления
Сертификат на скиповые подъемники
Сертификат на золоуловители (циклоны)
Сертификат на конвейеры скребковые
Сертификат на дробилки
Сертификат на клапаны предохранительные
Сертификат на бункер-накопитель механизированный
Сертификат на автоматику газовых горелок
Сертификат о происхождении товара форма СТ-1
Членство в СРО
Членство в СРО
Аттестованная технология сварки
Свидетельство аттестованной технологии сварки
Патент на отопительный котел
Патент на водогрейный котел
Патент на топку водогрейного котла
Патент на водогрейный газовый котел
Патент на водогрейный котел
Патент на топочное устройство твердотопливного котла
Патент на водогрейный котел
HEATEXPERT товарный знак
KVZR товарный знак
STEAMEXPERT товарный знак
Другая похожая продукция
Парогенератор 1000 кг 170 С на твердом топливе
Лизинг
Производительность, кг/ч1000
ТопливоТвердое, Уголь
Температура пара, не более, °C170
Давление пара, не более, МПа0.9
1 754 000 р. Цена с НДС
Котел 1000 кг 170 С
Лизинг
Производительность, кг/ч1000
ТопливоГаз
Температура пара, не более, °C170
Давление пара, не более, МПа0.9
1 462 000 р. Цена с НДС
Парогенератор 1000 кг пара на дизеле
Лизинг
Производительность, кг/ч1000
ТопливоЖидкое, Дизель
Температура пара, не более, °C115
Давление пара, не более, МПа0.07
1 156 000 р. Цена с НДС
Вы просматривали эти товары
Парогенератор дизельный 1200 кг 170 С
Лизинг
Вид топкиДизельная горелка
ТопливоЖидкое, Дизель
Температура пара, не более, °C170
Давление пара, не более, МПа0.9
1 489 000 р. Цена с НДС
Котел 1000 кг 170 С
Лизинг
Производительность, кг/ч1000
ТопливоЖидкое, Дизель
Температура пара, не более, °C170
Давление пара, не более, МПа0.9
1 462 000 р. Цена с НДС
Циклон СК ЦН 34
Внутренний диаметр корпуса циклона ЦН, мм600
Производительность циклона, м³/ч1530-3560
49 000 р. Цена с НДС
Котел с водяными колосниками 300 кВт
Вид топкиВодяные колосники, Ручная
Максимальная тепловая мощность, кВт300
ТопливоТвердое, Уголь
Отапливаемая площадь, м²2300-3300
436 000 р. Цена с НДС
background